Gartenhaus
Kiruna
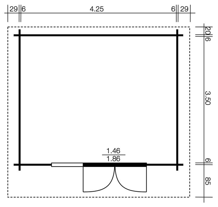
Auf großzügigen 15 m² Nutzfläche finden Sie genügend Raum für Aktivitäten oder Muße und Entspannung. Im Sommer wie im Winter. Denn mit 6 cm starker Blockbohlenkonstruktion hat unser Gartenhaus Kiruna einen bemerkenswerten Dämmwert. Viel Luft und Licht bringt die dreiflügelige Tür, deren harmonische Unterteilung Erinnerung an die Zeit des klassischen „Country-Styles“ wachruft.
Merkmale & Grundausstattung
Grundfläche
4,20 x 3,50 m
Wandstärke
4,5 cm oder 6,0 cm
Dachform
Satteldach
Materialart
Skandinavische Fichte
Imprägnierung
inklusive
Schlüsselfertige Lieferung


Unsere Wandstärken
Wir beraten Sie gerne dabei, die passende Wandstärke für Ihr neues Gartenhaus zu finden.

Blockbohle
Doppelnut und Feder

Blockbohle
Doppelnut und Feder
Anfrageformular








