Gartenhaus
Narvik II
Praktisch und modern!
Besser kann man unser Gartenhaus Narvik II wohl nicht beschreiben. Durch die optisch gerade Dachform und die 2 Lichtbänder in den Seitenwänden ist das Gartenhaus Narvik II genau das richtige, wenn es um ein qualitativ hochwertiges und modernes Gartenhaus geht.
Merkmale & Grundausstattung
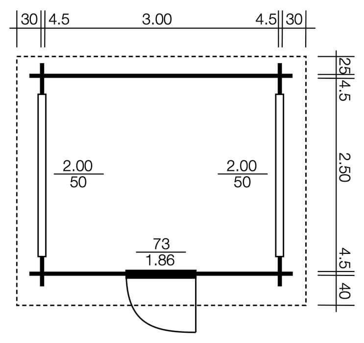
Grundfläche
3,00 x 2,50 m
Wandstärke
3,5 cm, 4,5 cm oder 6,0 cm
Dachform
Pultdach
Materialart
Skandinavische Fichte
Imprägnierung
inklusive
Schlüsselfertige Lieferung


Unsere Wandstärken
Wir beraten Sie gerne dabei, die passende Wandstärke für Ihr neues Gartenhaus zu finden.

Blockbohle
Doppelnut und Feder

Blockbohle
Doppelnut und Feder

Blockbohle
Doppelnut und Feder
Anfrageformular








