Kleingartenhaus
Helsingborg II
Mit diesem Haus sind Sie der „Star“ in jeder Gartenanlage.
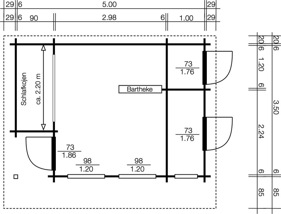
Unser Kleingartenhaus Helsingborg II ist die Alternative zu unserem normalen Kleingartenhaus Helsingborg I bietet sich speziell für Schrebergärten an. Bei diesem Grundriss finden Sie einfach alles vor. Wohnen – Schlafen – Kochen – WC – Abstellraum – alles zusammen auf rund 18 m² bebauter Fläche. Effektiver geht es kaum noch!
Merkmale & Grundausstattung
Grundfläche
5,00 x 3,50 m
Wandstärke
3,5 cm, 4,5 cm und 6,0 cm
Dachform
Satteldach
Materialart
Skandinavische Fichte
Imprägnierung
inklusive
Schlüsselfertige Lieferung


Unsere Wandstärken
Wir beraten Sie gerne dabei, die passende Wandstärke für Ihr neues Gartenhaus zu finden.

Blockbohle
Doppelnut und Feder

Blockbohle
Doppelnut und Feder

Blockbohle
Doppelnut und Feder
Anfrageformular








