Kleingartenhaus
Stockholm II Schlafboden
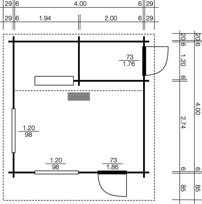
Schlafen – Wohnen – Kochen + Abstellraum bzw. WC. Alles auf sage und schreibe 16 m² Grundfläche.
Diese exklusive und gut durchdachte Konzeption unseres Kleingartenhaus Stockholm II Schlafboden findet nicht nur bei Kleingärtnern, sondern in zunehmender Weise auch bei Einfamilienhaus-Besitzern mit entsprechendem Platz im Garten großen Anklang.
Der begehbare Schlafboden ist bei Bedarf mit einer Anlegeleiter erreichbar und lässt vor allem Kinderherzen höher schlagen.
Merkmale & Grundausstattung
Grundfläche
4,00 x 4,00 m
Wandstärke
6,0 cm
Dachform
Satteldach
Materialart
Skandinavische Fichte
Imprägnierung
inklusive
Schlüsselfertige Lieferung


Unsere Wandstärken
Wir beraten Sie gerne dabei, die passende Wandstärke für Ihr neues Gartenhaus zu finden.

Blockbohle
Doppelnut und Feder
Anfrageformular








