Kleingartenhaus
Stockholm II Terrasse
Unser Haustyp „Stockholm II Terrasse“ vereint klassischen Charme mit rustikalem Stil.
Besonders die liebevoll gestalteten Dachabschlüsse im bayerischen Design verleihen dem Haus eine traditionelle, charaktervolle Note – ein echter Blickfang, der begeistert und im Gedächtnis bleibt.
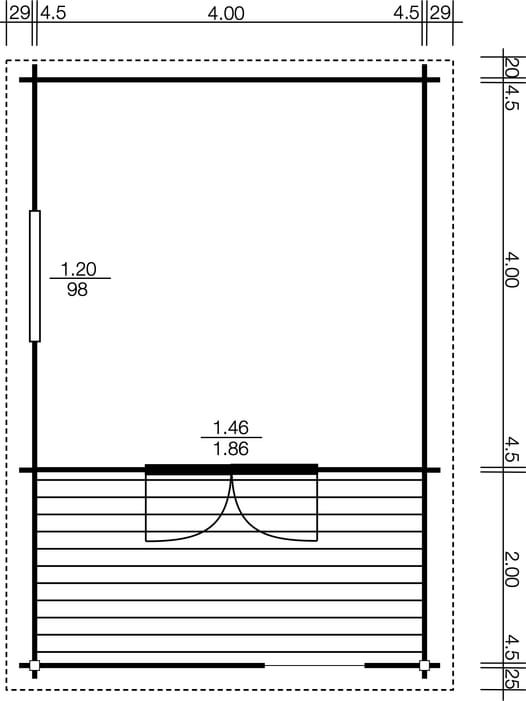
Die großzügige Terrasse mit den Maßen 4,00 m x 2,00 m lädt dazu ein, den Tag in entspannter Atmosphäre ausklingen zu lassen – ideal bei einem schönen Sonnenuntergang und einem guten Glas Wein.
Ein Haus zum Wohlfühlen – mit Stil, Gemütlichkeit und einem Hauch von Heimatgefühl.
Merkmale & Grundausstattung
Grundfläche
4,00 x 4,00 m
Wandstärke
4,5 cm und 6,0 cm
Dachform
Satteldach
Terrasse
4,00 x 2,00 m
(sibirische Lärche)
Materialart
Skandinavische Fichte
Imprägnierung
inklusive
Schlüsselfertige Lieferung


Unsere Wandstärken
Wir beraten Sie gerne dabei, die passende Wandstärke für Ihr neues Gartenhaus zu finden.

Blockbohle
Doppelnut und Feder

Blockbohle
Doppelnut und Feder
Anfrageformular








