Kleingartenhaus
Svendborg
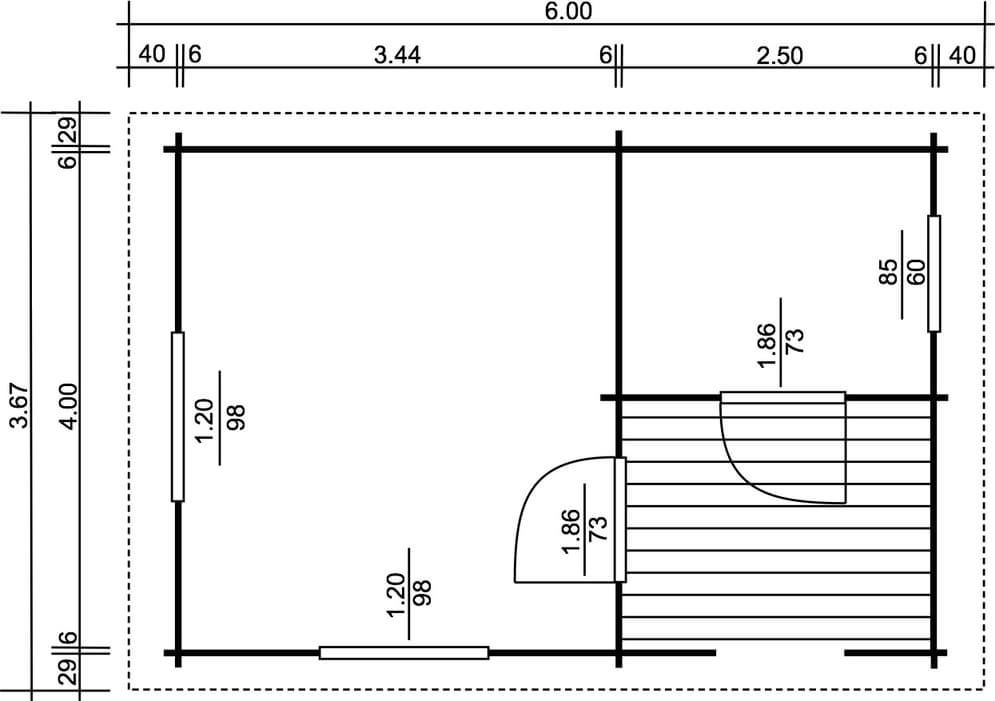
Um auch hier der Berliner Kleingartenregelung gerecht zu werden, wurde bei unserem Kleingartenhaus Svendborg bewusst die Grundfläche von 24 m² eingehalten. Der Hauptraum mit rund 14 m² bietet Ihnen die vielfältigsten Nutzungsmöglichkeiten.
Auch der großzügig gestaltete Abstellraum mit fast 5 m² bietet genügend Platz für jeden ambitionierten Kleingärtner. Und auf der 5 m² großen Terrasse können Sie z.B. im Sommer den Abend im Freien mit der Familie oder mit Freunden ausklingen lassen.
Merkmale & Grundausstattung
Grundfläche
4,00 x 6,00 m
Wandstärke
6,0 cm
Dachform
Satteldach
Terrasse
2,00 x 2,50 m
(sibirische Lärche)
Materialart
Skandinavische Fichte
Imprägnierung
inklusive
Schlüsselfertige Lieferung


Unsere Wandstärken
Wir beraten Sie gerne dabei, die passende Wandstärke für Ihr neues Gartenhaus zu finden.

Blockbohle
Doppelnut und Feder
Anfrageformular








