Merkmale & Grundausstattung
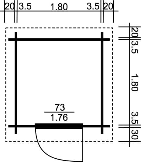
Grundfläche
1,80 x 1,80 m
Wandstärke
3,5 cm, 4,5 cm oder 6,0 cm
Dachform
Pultdach
Materialart
Skandinavische Fichte
Imprägnierung
inklusive
Schlüsselfertige Lieferung


Unsere Wandstärken
Wir beraten Sie gerne dabei, die passende Wandstärke für Ihr neues Gartenhaus zu finden.

Blockbohle
Doppelnut und Feder

Blockbohle
Doppelnut und Feder

Blockbohle
Doppelnut und Feder
Anfrageformular








